ID CP2583318

Casă Sântandrei, 4 cam, 150 mp SU, teren 500 mp.142.000 € • Comision 0

Această proprietate nu mai este activă,
te invităm să vizualizezi proprietăți similare

ID CP2583318

142,000 € (negociabil)

Casă / Vilă cu 4 camere de vânzare
Santandrei
150 mp
2025

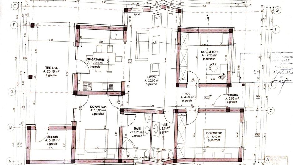
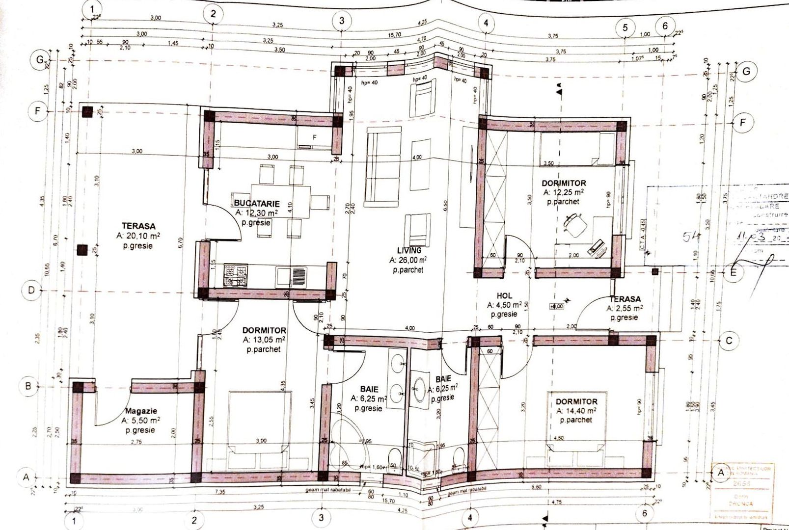
De vânzare: casă în Sântandrei, 4 camere, living, bucătărie, 2 băi, terasă, cameră tehnică, 150 mp SU, teren 500 mp, zonă de case noi. 142.000 € • Comision 0.

Casă pe un singur nivel, situată într-o zonă de case noi, pe un teren generos de 500 mp, cu front stradal de 18 m. Suprafață utilă: 150 mp, compartimentare eficientă:

* Living spațios și bucătărie semideschisă

* 3 dormitoare (dormitorul matrimonial cu baie proprie)

* 2 băi, terasă închisă de 20 mp

* Cameră tehnică (6 mp), acces din terasă

* Curent trifazic, foraj propriu, loc amenajat pentru grătar/filigorie

Detalii tehnice:

Construcție din cărămidă Porotherm, acoperiș cu țiglă Imcop, izolație EPS80, finisaje cu materiale de calitate (Caparol, Kronospan, Marmorex, Interio), încălzire în pardoseală, gard stradal zidit și împrejmuire laterală din panouri de beton, gaz disponibil la poartă.

Se predă „la alb” – fără uși interioare, sanitare sau corpuri de iluminat. Opțional, se poate preda „la cheie”.

Imobilul este înscris în CF, branșamentele și autorizațiile pentru electricitate și gaz sunt finalizate.

Se acceptă plată prin credit bancar.

Detalii și programări pentru vizionare: 0751 254 234

Citește mai mult

  • Număr camere
    4
  • Dormitoare
    3
  • Număr bucătării
    1
  • Număr băi
    2
  • Geam la baie
    Da
  • Număr terase
    1
  • Număr locuri parcare
    2
  • Disponibilitate
    Imediat
  • Tip casă
    Individual
  • Stare interior
    Semifinisat
  • Anul finisării
    2025
  • Suprafață utilă
    150 mp
  • Suprafață teren
    500 mp
  • Suprafață terasă
    22 mp
  • Deschidere
    18 m
  • Acoperiș
    Țiglă
  • Stadiu construcție
    Semifinisat
  • An construcție
    2025
  • Construcție nouă
    Da
  • Tip construcție
    Beton
  • Are pod
    Da

Facilități

Apă
Bucătărie deschisă
Canalizare
Centrală imobil
Curent
Curent trifazic (380V)
Curte
Faianță
Ferestre PVC
Gaz
Glet
Gresie
Iluminat stradal
Izolație exterioară
Nemobilat
Parcare deschisă
Parchet
Străzi pietruite
Ușă intrare metal
Zonă pentru barbeque
Necesare:

Site-ul nu poate funcționa corect fără aceste cookie-uri. Vezi cookie-urile

Statistică:

Strângem statistici anonime despre voi, vizitatorii unici, pentru a vă îmbunătăți experiența dumneavoastră. Vezi cookie-urile

Marketing:

Pentru a ne promova mai eficient serviciile noastre, folosim cookies pentru a vă identifica și a vă oferi proprietăți și servicii personalizate. Vezi cookie-urile

Acest site folosește cookies, află detalii. Alege ce tipuri de cookies dorești să permitem: