ID CP2587295

Vindem sp. comercial, openspace, ultracentral,516mp utili- 1.200.000E

Această proprietate nu mai este activă,
te invităm să vizualizezi proprietăți similare

ID CP2587295

1,200,000 € + 21% TVA

Spațiu comercial de vânzare
Ultracentral, Oradea
516 mp
2022

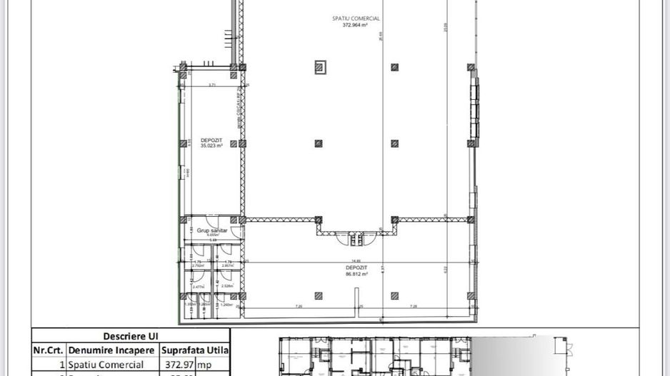
Spatiul este situat la parterul unui bloc de locuinte nou,situat ultracentral la doar 2 minute de Piata Unirii punctul zero al orasului Oradea, la un minut de Muzeul Tarii Crisurilor, 3 minute de Universitatea din Oradea.

Dispune de acces stradal si spatiu vitrat pe o lungime de 30 m cu 10 locuri de parcare amenajate.

Suprafata utila a spatiului masoara 516 mp .

Predarea spatiului se face cu bransamentele de utilitati, incalzirea in pardoseala asigurata de la reteaua de termoficare a orasului, dar amenajarea si finisarea va fi facuta de catre chirias, in functie de preferinte si tipul de activitate.

Imobilul este pretabil pentru diferite activitati comerciale,retail, medical, spatiu de birouri,sala de sport, cabinete , activitati de contabilitate etc.

Pret de vanzare propus de proprietar: 1.200.000 euro+tva

Contact: Sorin Gligor

Tel: 0731290032

Citește mai mult

  • Tip imobil
    Bloc de apart.
  • Etaj
    Parter
  • Număr camere
    1
  • Suprafață construită
    650 mp
  • Suprafață utilă
    516 mp
  • Vitrină (m)
    25.0 m
  • Disponibilitate
    Imediat
  • An construcție
    2022
  • Construcție nouă
    Da

Facilități

Apă
Canalizare
Curent
Gaz
Necesare:

Site-ul nu poate funcționa corect fără aceste cookie-uri. Vezi cookie-urile

Statistică:

Strângem statistici anonime despre voi, vizitatorii unici, pentru a vă îmbunătăți experiența dumneavoastră. Vezi cookie-urile

Marketing:

Pentru a ne promova mai eficient serviciile noastre, folosim cookies pentru a vă identifica și a vă oferi proprietăți și servicii personalizate. Vezi cookie-urile

Acest site folosește cookies, află detalii. Alege ce tipuri de cookies dorești să permitem: